
ATLAS
Etablissement Chossière

Société Plastella
Bonnaire traiteur
BestDrive Evreux
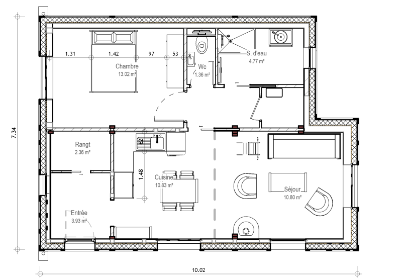
Rénovation de la maison existante et extension
Surface au sol : 100 m² + 100 m²
Client privé
Livraison Fin 2022
Rénovation du batiment existant
Surface au sol : 60 m²
Client privé
Livraison 2022
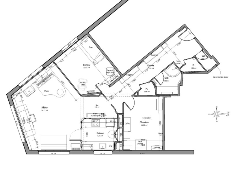
Appartement 3pièces
Surface totale : 76 m²
Maître d'Ouvrage : Privé
Architecte : Béatrice Agier
Livraison 1er trimestre 2008
Le projet consistait en le réaménagement de la cuisine, de la salle de bains et de l'appartement
Avoir une cuisine fermée tout en conservant la lumière dans le sas et dans le salon.
Logement 2 pièces dans le 20ème arrondissement
Maitre d'Ouvrage : Privé
SurfaceLoi Carrez : 30 m²
Livraison mars 2013
Juste pour le plaisir des yeux car ce projet ne réalisera pas ....
Programme de 28 logements à Hardelot (62).
Conception et Permis de Construire : G. Camel et B. Agier
Maitre d'Ouvrage : privé
Maitre d'Oeuvre : B. Agier
Lotissement "Le Clos du Giffier"
Surface : 205 m²
Mars 2003
Mission : Permis de Construire
Maitre d'Ouvrage : privé
Maitre d'Oeuvre : G. Camel & B. Agier
Les travaux ont apporté du volume et de la lumière à la maison en agrandissant l'entrée, la cuisine et en ouvrant des baies plus larges.
Mission : Permis de Construire
10 logements, collectif horizontal à Neufchâtel-Hardelôt (62)
Maître d'ouvrage : S.C.C.V. Hardelot Immobilier
Maître d'œuvre : G. Camel et B. Agier
Surface HON : 924 m²
Livraison début 2009
Mission : Permis de Construire et D.C.E.
Immeuble de 16 logements à Hardelot (62)
Maitre d'ouvrage : SCCV Hardelot Immobilier
Maître d'Oeuvre : G. Camel, B. Agier
Surface HON : 1 252 m²
Livraison fin 2007
Mission : Permis de Construire et D.C.E.
Immeuble de 20 logements et commerces
Surface totale : 1 730 m²
Maître d'Ouvrage : SOCAM
Architectes : G. Camel et B. Agier
Livraison en 2002
Mission Permis de Construire
Immeuble de 10 logements à Berck-sur-Mer (62)
Maitre d'ouvrage : S.I.C.O.P.
Maitre d'œuvre : G. Camel Et B. Agier
Surface HON : 880 m²
Livraison 2006
Mission : Permis de Construire, D.C.E., Chantier
Maître d'Ouvrage : SCI du 4 rue St Joseph
Rénovation d'un immeuble de 5 logements et de 3 ateliers d'artiste. Occupation de parcelle typique du 19ème siècle.
Maître d'oeuvre : G Gobert, collaboratrice B. Agier
Immeuble de 15 logements à Neufchâtel-Hardelot
Surface totale : 925 m²
Maître d'Ouvrage : SCCV Hardelot Immobilier
Architectes : G. Camel et B. Agier
Livraison en 2007
Mission Permis de construire
Maison située au Pradet (83)
Maitre d'Ouvrage : Privé
Surface surélévation : 78 m²
Livraison fin 2008
Mission Permis de Construire
Nous utilisons des cookies pour vous garantir la meilleure expérience sur notre site. En naviguant sur notre site vous acceptez l'installation et l'utilisation des cookies sur votre ordinateur.